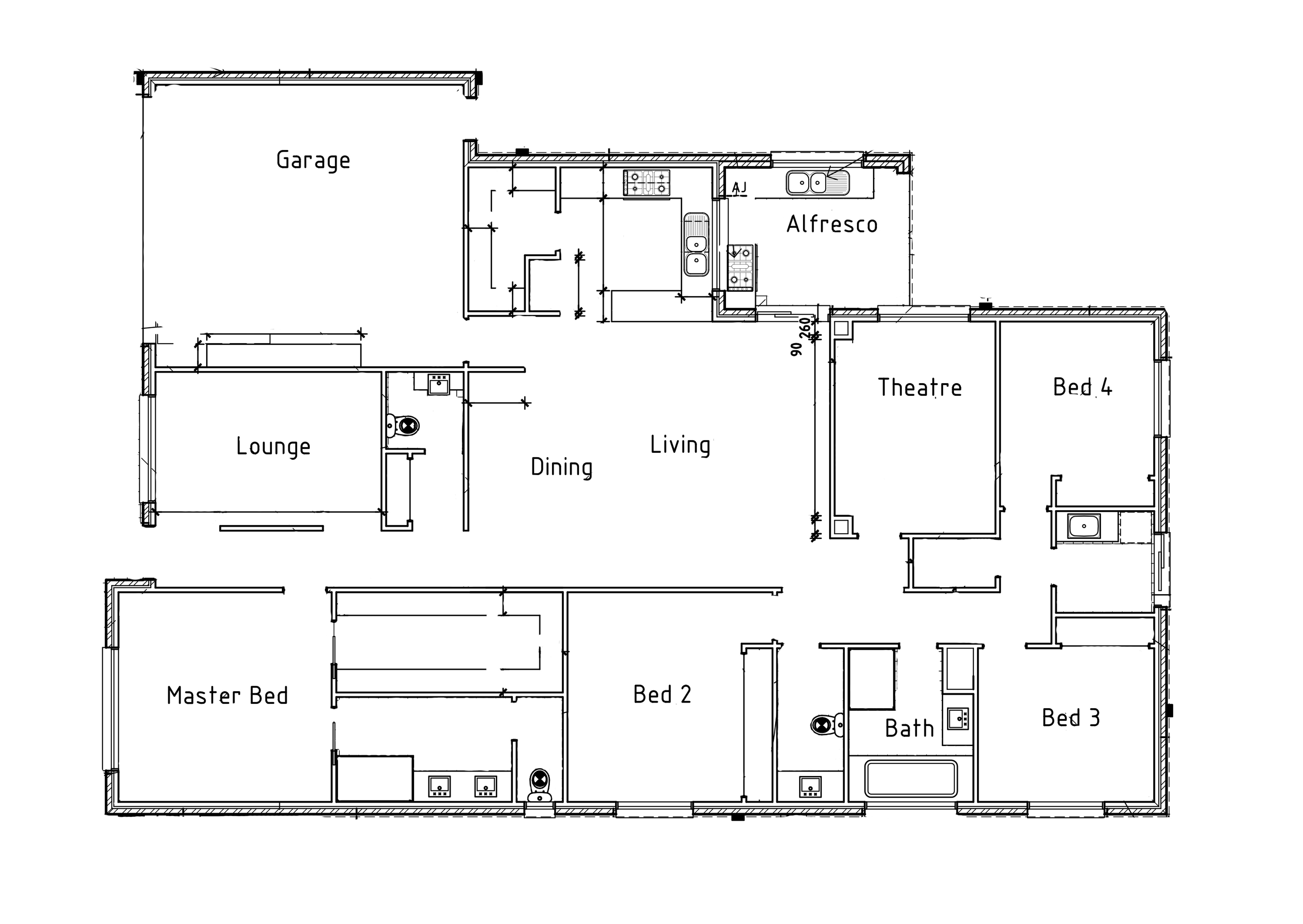
Superb
Built Up Area
28
4 Bedroom
2 Bathroom
2 Parking
House & Land Package Also Available
Built Up Area 21.56 Squares
- Evaporative Cooling & Ducted Heating
- 40mm Stone Throughout the Kitchen
- 2700mm Heigh Ceiling
- 7″ LCD Monitor Intercom
- 3 Steps Cornices to the Open Area
- Glass SplashBack to the Kitchen
- 900mm Stainless Steel Appliances
- Bulkhead to the Kitchen
- 600×600 Porcelain Tiles